• Costa Ovest - info@costaovestimmobiliare.it - Tel: +39 0183 493291 - Cell provincia di Imperia +39.345.21.30.769 / Cell provincia di Savona +39.349.69.56.649

I tuoi risultati

Diano Marina – Centralissimo appartamento recentemente ristrutturato!

€ 240.000
Viale Matteotti 89, ,
aggiungi ai preferiti

Diano Marina – Centralissimo appartamento recentemente ristrutturato!

Molto comodo a tutto, mare… servizi… di fronte all’ufficio postale di Diano…

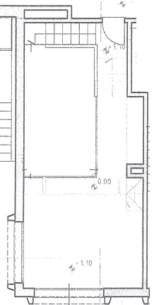
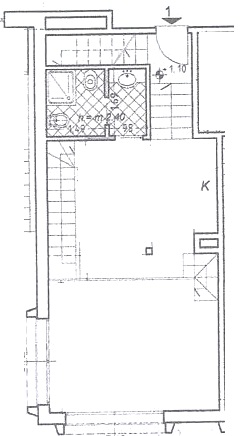
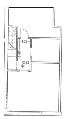
Un’ appartamento molto affascinante, che non puo’ non colpire, composto da:

ingresso, cucina abitabile, sala, camera soppalcata, antibagno, bagno e collegata da scala interna un’ampia zona semi-interrata con ampie finestre, composta da due vani ed ulteriore bagno!

L‘appartamento è pronto ad essere utilizzato da subito, completo del climatizzatore, si presta molto bene anche per eventuale rendita da affitto.

240.000, 00.

Indirizzo: Viale Matteotti 89
Nazione:
Cap: 18013
Codice imobile: 28720
Prezzo: € 240.000
Dimensioni immobile: 79 m2
Stanze: 4
Stanze da letto: 2
Bagni: 2
Riscaldamento: termovalvole
Classe Energetica: G
Anno Di Costruzione: 2010
Riferimento: br
Ascensore
Aria Condizionata
TV - Sat
ADSL - Internet
Cantina
Ripostiglio
Porta Blindata
Completamente arredato
Angolo cottura
Cucina abitabile
Doppia esposizione
Serramenti in alluminio
Finestra doppio vetro

Invia una mail

Paragona Immobili

Altre proposte

DIANO MARINA – AMPIO APPARTAMENTO CON ...

22 95 m2
DIANO MARINA – AMPIO APPARTAMENTO CON VISTA MARE! Nella prima ...
DIANO MARINA – AMPIO APPARTAMENTO CON VISTA MARE! Nella prima ...
€ 349.000 Compreso posto auto

DIANO MARINA – TRE LOCALI E DOPPI SERV...

22 70 m2
DIANO MARINA – TRE LOCALI E DOPPI SERVIZI VICINISSIMO AL ...
DIANO MARINA – TRE LOCALI E DOPPI SERVIZI VICINISSIMO AL ...
€ 270.000 box opzionale a € 30.000

DIANO MARINA – TRILOCALE RISTRUTTURATO...

22 65 m2
Bellissimo trilocale completamente ristrutturato, situato nelle immediate vicinanze della nuova ...
Bellissimo trilocale completamente ristrutturato, situato nelle immediate vicinanze della nuova ...
€ 319.000
  • Ricerca Immobili

    € 0 a € 800.000

    Altre opzioni di ricerca
  • Contatti

    Via Milano 6 -18013 - Diano Marina (IM)

  • Via Ponti 22 R – 17052 – Borghetto Santo Spirito (SV)

Costa Ovest Immobiliare
Cookies & Privacy Policy
Questo sito Web utilizza i cookie per consentirci di offrire la migliore esperienza utente possibile. Le informazioni sui cookie sono memorizzate nel tuo browser ed eseguono funzioni come riconoscerti quando ritorni sul nostro sito web e aiutando il nostro team a capire quali sezioni del sito web trovi più interessanti e utili. È possibile regolare tutte le impostazioni dei cookie navigando le schede sul lato sinistro. Per maggiori informazioni: Cookies Policy Privacy Policy